It is a pleasure to bring to the market this beautiful five bedroom detached family home. Situated on one of Adlington's most sought after estates, the property holds a prime position on a quiet cul-de-sac. Viewings are strongly advised!
Offering generous ground floor living accommodation, five double bedrooms, a private and sunny garden, two garages and ample driveway parking. This property ticks all the boxes of your new forever home.
Kings Lea is located in the small village of Heath Charnock. The Village benefits from a vast array of amenities on offer within the nearby larger village of Adlington. These include supermarkets, popular restaurants, takeaways, cafes, medical and educational facilities and much more. Adlington is also located ideally for bus and rail links to larger towns and cities, and motorway connections for the M60 and M61 are close by.
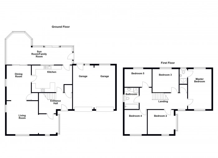
On entering the property, you will find a large entrance hallway which provides access to the ground floor accommodation and stairs to the first floor. There is also access to a room off the entrance hallway which has plumbing for a W/C. The large dual aspect living room can be found at the front of the property and leads through to the dining room. The dining room has bi-fold doors providing access to the family sun room. This fabulous space can be enjoyed by all whilst enjoying the view of the rear garden. The kitchen is made up of a range of wall and base units, with contrasting countertops, a modern splashback and several appliances, including a gas hob, extractor fan, and space for a fridge, dishwasher and washing machine.
On the first floor, you will find five bedrooms and two bathrooms, one of which is an en-suite. The welcoming master bedroom has views to the front and rear of the property and benefits from an en-suite shower room. The shower room comprises of W/C, wash basin and a shower. There are three further double bedrooms and one large single bedroom. The family bathroom comprises of W/C, a washbasin, a shower cubicle and a bath. On the landing, you will also find a handy storage cupboard.
Externally, to the front of the property, there is a lawn, a driveway for several cars and an access path to the front door. There is also a gate that leads to the rear garden. In the rear garden, you will find a couple of different patios, perfect for entertaining family and friends, along with a large lawn.
Entrance Hallway -
Living Room - 14' 2'' x 13' 5'' (4.33m x 4.08m)
Living Room Nook - 8' 10'' x 7' 3'' (2.69m x 2.22m)
Dining Room - 14' 10'' x 10' 4'' (4.52m x 3.15m)
Kitchen - 11' 1'' x 16' 4'' (3.37m x 4.97m)
Sun Room/Family Room - 24' 5'' x 14' 0'' (7.45m x 4.26m)
Garage One -
Garage Two -
Master Bedroom - 17' 3'' x 11' 2'' (5.25m x 3.41m)
En-suite -
Bedroom Two - 12' 0'' x 11' 9'' (3.66m x 3.58m)
Bedroom Three - 11' 0'' x 11' 8'' (3.36m x 3.55m)
Bedroom Four - 11' 10'' x 9' 5'' (3.60m x 2.88m)
Bedroom Five - 9' 5'' x 7' 10'' (2.87m x 2.38m)
Family Bathroom - 6' 3'' x 9' 3'' (1.90m x 2.81m)