or call us on 01257 485007
Sold Subject to Contract
Lewis Close, Adlington
£259,950
- Three spacious bedrooms plus a versatile loft room – ideal as a home office, playroom, or dressing room
- Convenient downstairs W/C
- Fabulous breakfast kitchen with modern units and space for casual dining
- Bright and welcoming with French doors opening to the rear garden
- Stunning open countryside views to the rear offering a peaceful and private outlook
- Driveway parking
- Located in a quiet area close to local schools, amenities, and transport links
- Excellent family home – spacious, stylish, and move-in ready
- EPC D
Chesters are delighted to offer for sale this beautifully presented three-bedroom semi-detached home with a loft room and countryside views on Lewis Close, Adlington.
Tucked away in a sought-after area in the heart of Adlington, this immaculately presented three-bedroom semi-detached property offers stylish living space ideal for growing families. Boasting a thoughtfully extended layout and breath-taking open countryside views to the rear, this home effortlessly combines comfort, space, and practicality.
Step inside to discover a welcoming entrance hallway, a convenient downstairs W/C, and a fabulous breakfast kitchen featuring modern units, ample worktop space, and a dining area perfect for busy mornings or relaxed family meals. The spacious lounge is bright and inviting, with French doors opening out to the private rear garden from the conservatory– the ideal spot to enjoy peaceful rural outlooks.
Upstairs, you'll find three well-proportioned bedrooms and a modern family bathroom. A particular highlight is the loft room, offering versatile additional space – ideal as a home office, playroom, but currently used as a dressing room.
Outside, the property benefits from ample driveway parking and a generous rear garden backing onto open fields, providing a real sense of tranquillity.
This is an excellent family home, beautifully finished throughout and located close to local amenities, schools, and excellent transport links.
Viewing is highly recommended to fully appreciate the space, presentation, and setting this home offers.
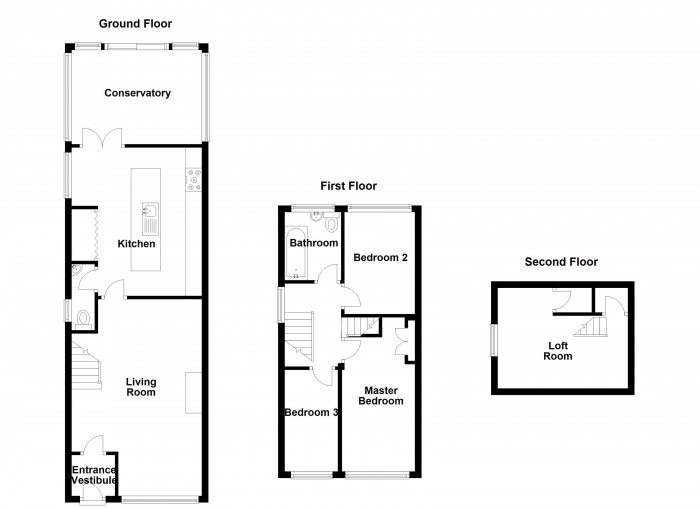
Entrance Porch -
Living Room - 20' 0'' x 14' 0'' (6.09m x 4.26m)
Breakfast Kitchen - 15' 1'' x 14' 0'' (4.59m x 4.26m)
WC - 6' 9'' x 2' 8'' (2.06m x 0.81m)
Conservatory - 14' 0'' x 9' 7'' (4.26m x 2.92m)
Bedroom One - 15' 1'' x 8' 4'' (4.59m x 2.54m)
Bedroom Two - 10' 2'' x 8' 4'' (3.10m x 2.54m)
Bedroom Three - 10' 4'' x 5' 11'' (3.15m x 1.80m)
Family Bathroom - 6' 11'' x 5' 10'' (2.11m x 1.78m)
Loft Room - 14' 0'' x 10' 3'' (4.26m x 3.12m)
Floorplan & EPC

