or call us on 01257 485007
For Sale
Bolton Road, Anderton
Offers in the Region Of £159,950
- Charming two-bedroom stone-fronted terrace
- Located on the popular Bolton Road, Anderton
- Period property with traditional features and character
- Requires modernisation throughout – ideal for buyers wanting a project
- Excellent first-time buyer opportunity or investment potential
- Two spacious reception rooms and kitchen to the rear
- Two well-proportioned bedrooms and shower room
- Close to scenic countryside walks and outdoor spaces
- Small yard to the rear
- Offered with no onward chain
Offered to the market with no onward chain, this well-loved two-bedroom stone-fronted terrace presents an excellent opportunity for first-time buyers or investors alike. Located on the ever-popular Bolton Road in Anderton, this period property is bursting with potential and now requires modernisation throughout, allowing buyers to put their own stamp on a characterful home.
Set within a convenient location, the property is just a short distance from local amenities, highly regarded schools, and transport links, while also being ideally positioned for access to scenic countryside walks – perfect for those who enjoy the outdoors.
Internally, the accommodation comprises a traditional layout with two spacious reception rooms and a kitchen to the rear. Upstairs offers two well-proportioned bedrooms and a shower room. Externally, the property benefits from on-road parking provisions and a small yard to the rear.
With its attractive stone façade, sought-after location, and scope for improvement, this is a superb opportunity not to be missed.
Early viewing is highly recommended.
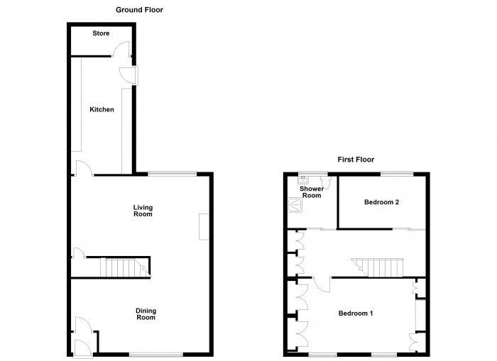
Entrance Vestibule -
Dining Room - 13' 11'' x 11' 6'' (4.23m x 3.51m)
Living Room - 10' 11'' x 13' 11'' (3.33m x 4.23m)
Kitchen - 17' 4'' x 6' 9'' (5.29m x 2.06m)
Store -
Bedroom One - 11' 5'' x 25' 7'' (3.47m x 7.80m)
Bedroom Two - 8' 0'' x 7' 11'' (2.45m x 2.41m)
Shower Room - 4' 6'' x 7' 10'' (1.38m x 2.38m)
-
Floorplan & EPC

