This detached true bungalow is located in a much sought-after tucked away cul-de-sac in Blackrod within easy reach of the village centre. Spacious accommodation throughout, and set in attractive gardens. Two generous bedrooms, one with dressing room, driveway parking and detached garage.
Lymbridge Drive is a quiet street conveniently located within easy walking distance to the village amenities, shops, and schools, a short walk to Blackrod train station, approx five minutes drive to Horwich town centre and close to Middlebrook retail park and the M61 motorway.
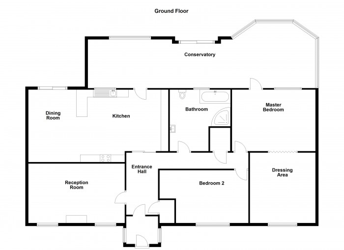
Internally the property briefly comprises; entrance hallway, lounge, spacious kitchen diner with patio doors to the rear garden, large conservatory, part of which forms a utility area/office space, two double bedrooms, the master of which has an attached dressing room with fitted wardrobes and a recently fitted, beautiful four piece bathroom.
The property benefits from a good sized garage, driveway and gardens.
Please note, prospective tenants must have a keen interest in gardening as they will be expected to keep it to a good standard throughout the year. Alternatively, the tenant can hire a gardener.
Entrance Hallway -
Living Room - 15' 7" x 10' 7" (4.75m x 3.23m)
Dining Area - 10' 6" x 8' 8" (3.20m x 2.64m)
Kitchen - 11' 5" x 8' 5" (3.48m x 2.57m)
Bathroom - 7' 6" x 8' 5" (2.29m x 2.57m)
Bedroom One - 11' 7" x 21' 6" (3.53m max x 6.55m)
Bedroom Two - 9' 6" x 10' 6" (2.90m x 3.20m)
Conservatory -
Garage -