or call us on 01257 485007
Sold Subject to Contract
Greenhalgh Lane, Anderton
£230,000
- Charming period terrace in a highly sought-after Anderton location
- Situated close to the West Pennine Moors, Rivington, and Anglezarke
- Beautifully presented throughout, combining period character with tasteful modern finishes
- Spacious open-plan country-style dining kitchen – ideal for entertaining and family living
- Versatile loft room to the second floor – ideal as a guest bedroom, home office, or creative space
- Attractive period frontage and private outdoor space to the rear
- Picturesque semi-rural setting offering peace and tranquillity
- Conveniently located close to Adlington village amenities, including shops, cafés, and schools
- Excellent transport links via nearby bus routes and railway stations to Bolton, Chorley, and Manchester
- A home of refined character and timeless appeal, blending countryside charm with modern lifestyle convenience
Perfectly positioned on the edge of the West Pennine Moors, within easy reach of Rivington and Anglezarke, this exquisite period terrace offers a rare opportunity to enjoy refined country living with all the convenience of nearby village amenities.
Full of charm and character, the property blends timeless period features with tasteful modern touches, creating a warm and welcoming home of real distinction.
At its heart lies an open-plan country-style dining kitchen, beautifully designed to combine style and practicality — ideal for both everyday family life and entertaining.
To the first floor, two spacious bedrooms are complemented by a family bathroom, while the loft room to the second floor provides a versatile and inspiring space, perfect as a guest suite, home office, or creative studio.
The location is truly exceptional. Nestled close to picturesque walking and cycling trails, residents can explore the breathtaking scenery of Rivington and Anglezarke Reservoirs, while the vibrant community of Adlington — with its boutique shops, cafés, and transport links — lies just moments away. Excellent bus routes and nearby railway stations connect seamlessly to Bolton, Chorley, and Manchester, ensuring that tranquillity never comes at the expense of accessibility.
Offering an enchanting balance of heritage, style, and lifestyle, Greenhalgh Lane presents an outstanding opportunity to own a home of genuine charm in one of Lancashire’s most desirable semi-rural settings.
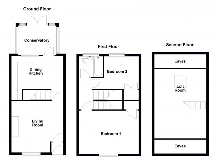
Entrance Vestibule -
Living Room - 14' 1'' x 14' 0'' (4.29m x 4.27m)
Dining Kitchen - 14' 1'' x 11' 11'' (4.29m x 3.63m)
Conservatory - 10' 11'' x 8' 0'' (3.33m x 2.43m)
Bedroom One - 14' 1'' x 11' 2'' (4.29m x 3.41m)
Bedroom Two - 7' 5'' x 8' 11'' (2.27m x 2.73m)
Family Bathroom - 6' 1'' x 5' 10'' (1.86m x 1.78m)
Loft Room - 14' 1'' x 12' 7'' (4.29m x 3.83m)
Floorplan & EPC