or call us on 01257 485007
Sold Subject to Contract
Fairview Drive, Adlington
£425,000
- 5 spacious bedrooms, including master suite with ensuite and walk-in dressing room
- 3 reception rooms and large dining kitchen
- Utility room and ground-floor W/C
- Ensuite shower room to bedroom two and family bathroom
- Large driveway for 6 cars and double garage
- Larger-than-average garden with huge potential
- Blank canvas with excellent potential for personalization
- Fantastic location for families, with no chain delay
- No chain delay for a smooth transaction
- Freehold Property and no management charges
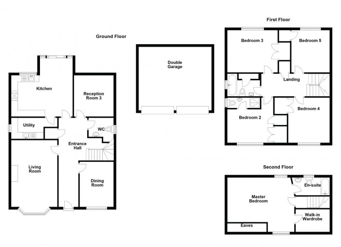
Nestled in a highly sought-after location, this impressive 5-bedroom detached home offers a wealth of space, flexibility, and potential. Perfectly suited for modern family living, the property is a blank canvas, allowing you to stamp your own style and create your dream home.
The ground floor comprises three generous reception rooms, ideal for entertaining or relaxing, alongside a large dining kitchen, perfect for family meals and social gatherings. A well-appointed utility room adds convenience, while a welcoming entrance hallway and a handy ground-floor W/C enhance the practicality of this home.
Upstairs, the master suite occupies the entire second floor, offering a private retreat with a spacious ensuite shower room and a large walk-in dressing room. The first floor boasts four further double bedrooms, with bedroom two benefitting from an ensuite shower room, plus a large family bathroom to accommodate the needs of the whole household.
Externally, the property features a large driveway with space for up to 6 cars, and a substantial double garage for additional storage or parking. The larger-than-average garden offers great potential for outdoor living, from family play areas to potential extensions or landscaping projects.
With no chain delay, this is an excellent opportunity for growing families looking for a spacious, versatile home in a prime location. Early viewing is highly recommended to appreciate all that this exceptional property has to offer.
Entrance Hallway -
Living Room - 16' 11'' x 11' 7'' (5.15m x 3.53m)
Dining Room - 10' 9'' x 8' 6'' (3.28m x 2.60m)
Family Room - 10' 8'' x 9' 11'' (3.24m x 3.01m)
Dining Kitchen - 15' 5'' x 15' 5'' (4.70m x 4.71m)
Utility Room -
W/C -
Master Bedroom - 19' 0'' x 12' 3'' (5.79m x 3.73m)
Ensuite Shower Room -
Walk-In Dressing Room -
Bedroom Two - 13' 11'' x 11' 8'' (4.25m x 3.56m)
Ensuite Shower Room -
Bedroom Three - 10' 8'' x 12' 9'' (3.25m x 3.88m)
Bedroom Four - 10' 10'' x 11' 10'' (3.29m x 3.61m)
Bedroom Five - 10' 8'' x 9' 11'' (3.25m x 3.02m)
Double Garage -
Floorplan